Bungalow House Plan # 630

Email
630
630-1
Description

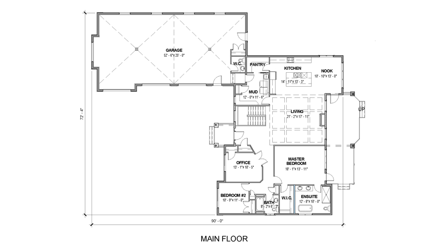
Area 2,065 sq.ft
Bedrooms 2
Width 90' - 0"

Price $ 849

   
Main Floor Area:  2065 Sq. Ft
  2065 Sq. Ft
Basement Area: 2043 Sq. Ft
   2043 Sq. Ft  
Garage Area: 1438 Sq. Ft
  1438 Sq. Ft
Deck Area: 354 Sq. Ft
Porch Area: 56 Sq. Ft
  410 Sq. Ft
  5955 Sq. Ft



 

KNOPKA

awardProviding drafting services: custom home design, house plans, basement plans, floor plans, renovations, garage plans, duplexes. Serving Edmonton, Calgary, Red Deer, St. Albert, Sherwood Park, Spruce Grove, Leduc, Westlock, Athabasca, Lac La Biche, Fort McMurray, Faust, Valleyview, McLennan, Grande Prairie, Peace River, Fort Vermilion, High Level, Fort Chipewyan, Grande Cache, Hinton, Jasper, Brazeau, Banff, Wainwright, Drumheller, Medicine Hat, Lethbridge, Alberta, Canada.

 

Copyright © 2014-2018 LikeHomeDesign.com Inc.

Powered by Bukweb

LikeHomeDesign.com Inc.
6033 - 103A St. NW
Edmonton, AB T6H 2J7
ph. 780-757-6543