Bungalow House Plan # 264

Email
264
264-1
Description

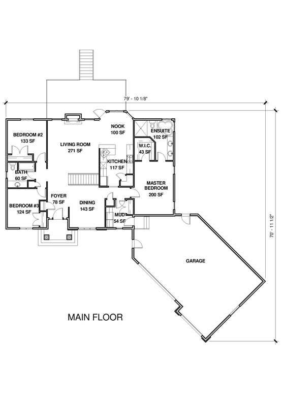
Area 1,728 sq.ft
Bedroom 3
Width 79'-10 1/8"
Price $ 849


Building Area: 
Main Floor:                1,728 Sq. Ft

Unfinished Basement:  1,721 Sq. Ft
Garage:                       913 Sq. Ft

 KNOPKA

awardProviding drafting services: custom home design, house plans, basement plans, floor plans, renovations, garage plans, duplexes. Serving Edmonton, Calgary, Red Deer, St. Albert, Sherwood Park, Spruce Grove, Leduc, Westlock, Athabasca, Lac La Biche, Fort McMurray, Faust, Valleyview, McLennan, Grande Prairie, Peace River, Fort Vermilion, High Level, Fort Chipewyan, Grande Cache, Hinton, Jasper, Brazeau, Banff, Wainwright, Drumheller, Medicine Hat, Lethbridge, Alberta, Canada.

 

Copyright © 2014-2018 LikeHomeDesign.com Inc.

Powered by Bukweb

LikeHomeDesign.com Inc.
6033 - 103A St. NW
Edmonton, AB T6H 2J7
ph. 780-757-6543